常壓熱水鍋爐

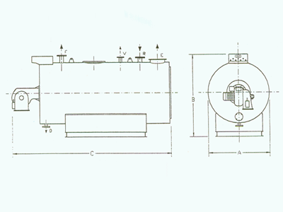
CWNS系列臥式全自動燃油(氣)常壓熱水鍋爐外形圖
| 產品特點 | |||||||||||
| 全自動操作三回程,中心回燃,濕背式設計水冷式前后煙箱進口自控元件,燃油、氣或雙燃料燃燒器。 | |||||||||||
| CWNS系列臥式全自動燃油(氣)常壓熱水鍋爐技術參數 | |||||||||||
| 項目\型號 |
CWNS0.21-95/70Y(Q) |
CWNS0.35-95/70Y(Q) |
CWNS0.7-95/70Y(Q) |
CWNS1.05-95/70Y(Q) |
CWNS1.4-95/70Y(Q) |
CWNS2.1-95/70Y(Q) |
CWNS2.8-95/70Y(Q) |
CWNS3.5-95/70Y(Q) |
CWNS4.2-95/70Y(Q) |
||
|
額定熱功率 |
MW |
0.21 |
0.35 |
0.7 |
1.05 |
1.4 |
2.1 |
2.8 |
3.5 |
4.2 |
|
|
×104 kcal/h |
18 | 30 | 60 | 90 | 120 | 180 | 240 | 300 | 360 | ||
|
工作壓力 |
MPa |
常 壓 |
|||||||||
|
熱效率 |
% |
≥87 |
|||||||||
|
額定出/回水溫度 |
℃ |
95/70 |
|||||||||
|
鍋爐滿水容量 |
kg |
600 |
1000 |
1500 |
2000 |
2600 |
3000 |
4000 |
5000 |
5900 |
|
|
燃料 耗量
|
柴油 |
kg/h |
19 |
31 |
62 |
94 |
123 |
186 |
246 |
310 |
374 |
| 重油 |
kg/h |
20 |
33 |
64 |
99 |
126 |
190 |
249 |
314 |
378 |
|
| 燃氣 | Nm3/h |
44 |
72 |
144 |
216 |
287 |
430 |
574 |
717 |
860 |
|
|
配電量 |
kw |
0.55 |
0.55 |
1.1 |
2.2 |
2.2 |
7.5 |
7.5 |
11 |
11 |
|
| 出水管口徑F | mm | 50 | 65 | 80 | 100 | 100 | 150 | 200 | 200 | 200 | |
| 回水管口徑R | mm | 50 | 65 | 80 | 100 | 100 | 150 | 200 | 200 | 200 | |
| 排污管口徑D | mm | 20 | 20 | 20 | 25 | 25 | 25 | 25 | 40 | 40 | |
| 煙囪口徑E | mm | 200 | 200 | 280 | 330 | 380 | 450 | 500 | 550 | 600 | |
| 大氣連通管口徑V | mm | 65 | 80 | 100 | 125 | 125 | 150 | 200 | 200 | 200 | |
|
外形 尺寸 |
寬A | mm | 1000 | 1100 | 1200 | 1350 | 1450 | 1700 | 1900 | 2100 | 2300 |
| 高B | mm | 1490 | 1590 | 1690 | 1840 | 1940 | 2192 | 2396 | 2596 | 2796 | |
| 長C | mm | 2630 | 2980 | 3485 | 4235 | 4540 | 4735 | 4845 | 4970 | 5150 | |
| 運輸重量 | kg | 900 | 1500 | 2000 | 2700 | 3300 | 5000 | 6500 | 7400 | 8800 | |
.
常壓熱水鍋爐
| 產品特點 |
| 型號:CLSG-500 工作壓力:常壓 額定出水溫度=90℃ 額定回水溫度=70℃ 燃料種類:煙煤或木柴 熱效率:≥70% 容水量:150kg 尺寸:直徑 500mm 高度:1600mm煙囪 =140mm 高度=4000mm內膽厚度=4mm 外殼厚度=3mm 鋼材:a235B.20 |


500mm 高度:1600mm


